401会議室401 conference room
2分割レイアウトも可能!目的や人数にあわせてご利用ください
当センター会議室の中で、ホールに次ぐ広さの会議室です。会議はもちろん説明会や試験会場等、様々な会場レイアウトに対応します。
2分割も可能ですので、目的・お人数に合わせてご利用ください。
こちらと同規模の会議室が「3階/301会議室」となります。







◆会場使用例
講演会
セミナー
会社説明会
展示会
入学試験
研修会
商談会
◆収容人数
全室/261㎡(79坪)
- ロの字2名
48人 - ロの字3名
72人 - スクール2名
96人 - スクール3名
144人 - シアター
226人
1/2/130㎡(39坪)
- ロの字2名
32人 - ロの字3名
48人 - スクール2名
48人 - スクール3名
72人 - シアター
120人
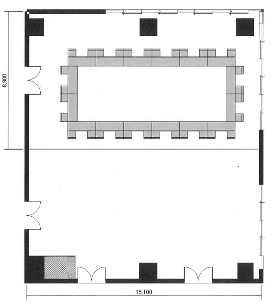
◆レイアウト例
◆ご利用料金
料金は消費税込みの表示となっております。
401(全室)
9~18時
- 基本(2時間)
- 37,400円
- 1時間増
- 13,090円
18時以降
- 基本(2時間)
- 45,980円
- 1時間増
- 17,050円
1日
- 9時~17時
- 109,560円
展示会
- 9時~21時
- 160,160円
401(1/2)
9~18時
- 基本(2時間)
- 18,700円
- 1時間増
- 6,600円
18時以降
- 基本(2時間)
- 22,880円
- 1時間増
- 8,580円
1日
- 9時~17時
- 54,780円
展示会
- 9時~21時
- 79,970円